MENU
712,048

スレッドNo.819

Matrix Kit, Wave 壁面のドルビーアトモス仕様のスタジオ

半年前に完成したドルビーアトモス仕様のスタジオです。コロナで手つかずになっていた完成写真の撮影と残響時間の測定を行いました。業務用のスタジオなのでオーディオルームのように測定データを開示することはしませんが、とても稼働率の高いスタジオに仕上がりました。

このスタジオ(東京)に、SV・STWなど、自由に使っていただける無料貸し出しのパネルのストックがあります、ご自身の車で集荷と返却ができれば、どなたでもご利用いただけます。ご希望は mur@salogic.com にお問い合わせください。1週間程度で返却してください。

3,000円/月程度の有料ですが、長期貸し出し体験プランも用意しました。1年以内に商品の購入があれば、プランのご利用代金は全額値引きいたします。(無償ルームチューン終了の代案です)
https://salogic.ocnk.net/product-list/104

引用して返信編集・削除(編集済: 2021年09月15日 17:03)

スタジオのオーナーです。

【Profile】レコーディング・エンジニア。青葉台スタジオに入社後、フリーランスとして独立。2014年Xylomania Studioを設立。これまでにチャットモンチー、ASIAN KUNG-FU GENERATION、Official髭男dism、MOSHIMO、ichikoro、D.W.ニコルズなどの作品に携わる。また、商業スタジオやミュージシャンのプライベート・スタジオの音響アドバイスも手掛ける。

2020年11月20日(旧掲示板からのコピーです)

引用して返信編集・削除(編集済: 2021年09月12日 16:12)

オーディオファン・シアターファンには馴染みが薄いと思いますが、このスタジオの建築記、「サウンド&レコーディング・マガジン」に連載中です。1年間続きます。

2021年1月号が連載第五回です。
https://www.snrec.jp/entry/column/diy_immersive5

2020年11月20日(旧掲示板からのコピーです)

引用して返信編集・削除(編集済: 2021年09月12日 16:13)

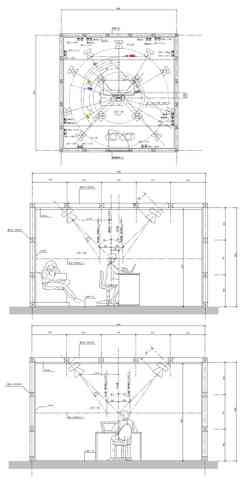
ドルビーアトモスはスピーカーの設置条件がすこぶるシビア。

2020年11月9日(旧掲示板からのコピーです)

引用して返信編集・削除(編集済: 2021年09月12日 16:13)

ドルビーアトモスのスタジオ、着々完成度を上げています。

2021年1月2日(旧掲示板からのコピーです)

引用して返信編集・削除(編集済: 2021年09月12日 16:14)

完成写真1

引用して返信編集・削除(編集済: 2021年09月12日 17:00)

完成写真2

引用して返信編集・削除(編集済: 2021年09月12日 17:11)

完成写真3

引用して返信編集・削除(編集済: 2021年09月12日 17:12)

完成写真4

引用して返信編集・削除(編集済: 2021年09月12日 17:13)

完成写真5

引用して返信編集・削除(編集済: 2021年09月12日 17:13)

完成写真6

引用して返信編集・削除(編集済: 2021年09月12日 17:14)

このスレッドに返信

ロケットBBS

Page Top